growshopkoropi Copyright © 2025 - All rights reserved. Designed and Developed byLEONEG

AGRICOOLTUR HORTUS STORE 30
AGRICOOLTUR HORTUS STORE 30
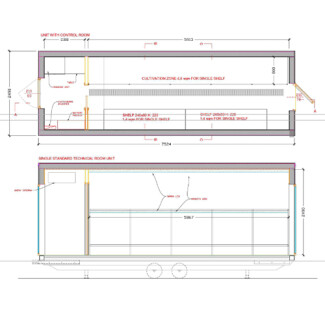
La struttura è costituita da un container ultima vita opportunamente modificato ed allestito per alloggiare due sistemi di coltivazione Aerosmart. Al fine di garantire l’illuminazione naturale necessaria all’accrescimento delle piante, le pareti del modulo sono parzialmente sostituite da pannelli in policarbonato compatto, e la copertura in pannelli in policarbonato alveolare.
Hortus è dotato di ventole a filtro che consentono al modulo di immettere aria pulita dall’esterno ed espellere aria arricchita di ossigeno grazie alla fotosintesi delle piante contenute all’interno. Un sistema di condizionamento consente di gestire la temperatura all’interno del modulo l’acqua di condensa viene recuperata, arricchita di fertilizzanti naturali e utilizzata per la coltivazione nell’Aerosmart. Un quadro elettrico dotato di controllore consente la gestione remota dei parametri ambientali di Hortus e di coltivazione dell’Aerosmart.

Caratteristiche tecniche:

Cod. HORSTOR € 58.560,OO



MOBILFARM offre un ambiente efficiente e versatile per la coltivazione della cannabis medicinale, progettato per massimizzare la produttività e rispettare gli alti standard di qualità. Ottimizzato per la fase di mantenimento di madri e la produzione di talee, assicura condizioni ideali di crescita grazie ai suoi sistemi avanzati di controllo climatico e illuminazione. Con MOBILFARM, gli agricoltori possono coltivare in modo sicuro, rispondendo alle esigenze del mercato con flessibilità e affidabilità.
Cosa è MOBILFARM? MOBILFARM offre un ambiente efficiente e versatile per la coltivazione della cannabis medicinale, progettato per massimizzare la produttività e rispettare gli alti...
growshopkoropi Copyright © 2025 - All rights reserved. Designed and Developed byLEONEG